Летний душ своими руками – пошаговая инструкция строительства душевой, от простого к сложному
Сложно переоценить значение воды в жизни человека. Особенно в период солнечного зноя. Летняя душевая, это именно то, что позволяет взбодриться и освежиться после садово-огородных подвигов.
Кстати, далеко не каждый дачник имеет летний душ на участке. А зря! Ведь устроить его можно просто - в виде временного строения (разборного) или основательно, для ежегодного использования.
Если вас интересует, как сделать летний душ своими руками, то эта статья станет хорошим руководством, поскольку содержит тонкости выбора стройматериала для душа и каркаса, бака для воды, устройства слива, а также чертежи и схемы для быстрой и недорогой постройки.
Но, обо всем пошагово и подробно.
Планируя строительство летнего душа на даче нужно уделить внимание выбору материалов, которые будут использованы в процессе возведения. Летний душ - это не только гигиенические процедуры, это еще и декоративный элемент в ландшафтном дизайне участка. Не на каждой даче процветает стиль минимализм, а потому рассмотрим для начала, каких типов бывают душевые.
Виды летнего душа для дачи
Простой уличный душ
Конструктивно простейший душ состоит из бака с краном, который установлен на высоте человеческого роста.
Бак для душа можно установить на дереве или проложить поливочный шланг, закрепив на специальной стойке, а на землю бросить резиновый коврик. В качестве разовой меры, такой душ, конечно же, сгодится.
Но, если им пользоваться часто, то место купания превратится в грязевую ванную, которая сделает загородный участок похожим на болото, что в наши планы, безусловно, не входит.
Каркасный душ для дачи
Открытый летний душ с удаленным баком
На фото показан уличный душ с установкой бака вдали от места купания. Это обусловлено тем, что каркас душа не может выдержать вес наполненной водой емкости.
Закрытый каркасный летний душ с баком
Эту конструкцию уже можно назвать душевой домик (или дачная душевая кабина). Именно она получила наибольшее распространение среди владельцев частных домов, несмотря на большую сложность и стоимость изготовления. Поэтому, на их устройстве мы остановимся более подробно.
Виды каркасных душевых отличаются друг от друга в основном материалом внешней отделки. Как свидетельствуют отзывы на форумах, наибольшую популярность получили:
Душ из пленки
Его особенность в абсолютной мобильности и дешевизне. Чтобы
сделать такой душ, достаточно изготовить разборной (или цельный) каркас и
ширму из плотной пленки ПВХ (или брезента). Переносной душ легко перемещается из одного места в другое.
Однако, его нельзя всерьез рассматривать как долговременную постройку, т.к. срок службы ограничен качеством пленки (полимерного рулонного полотна). Обычно ее меняют каждый сезон, а то и по несколько раз за сезон.
Деревянный душ
Такую постройку, а также все последующие уже может считаться
капитальной (стационарной). Оптимальный вариант использования пиломатериала – облицовка
строганой доской или обшивка каркаса деревянной вагонкой. Можно использовать
влагостойкие плиты ОСБ (OSB) или фанеру, но не целесообразно в виду
гигроскопичности.
Дерево хорошо тем, что это натуральный материал. Но его использование требует должной обработки и постоянного ухода. Деревянный душ прослужит от 5 до 15 лет. Использование дерева в качестве материала отделки не исключает возможности создать уникальный проект.
Подробное описание, как сделать деревянный душ своими руками
Душ из профнастила
Готовые садовые душевые показаны на фото. Профнастил – это профилированный лист из тонкого металла. Для душа подойдет окрашенный лист с толщиной металла не менее 0,45. Такой душ устойчив к влаге, но более дорогой и деформируется при механических повреждениях.
Следует учитывать, что летом стальная конструкция сильно нагревается (даже можно сказать, раскаляется) и как следствие, внутри жарко и душно, поэтому, нужно предусмотреть хорошую вентиляцию. Срок службы определяется сроком гарантии листа и составляет от 10 до 25 лет.
Совет: Если решили использовать профнастил, отдайте предпочтение матовому покрытию. Срок его службы составит до 25 лет.
Душ из поликарбоната
Благодаря возможности использовать «эффект парника», поликарбонат становится одним из популярных и доступных материалов для
строительства душа.
Для устройства летней душевой лучше использовать непрозрачный сотовый поликарбонат, толщиной 8-16 мм, специальный профиль и шайбы для крепления. Поликарбонатный душ прослужит вам от 3 до 10 лет (в зависимости от качества листа).
Подробное описание, как сделать летний душ из поликарбоната своими руками
Кирпичный душ
Уличный душ из камня или кирпича уже не назовешь временным летним душем, поскольку обычно к нему стараются провести водопровод и электричество. Душевой домик из кирпича, при правильно организованном сливе эксплуатируется довольно долго.
Выбор места под летний душ на участке
Чтобы пользоваться душем долго и без проблем нужно правильно разместить его на участке, для этого нужно учесть:
- расстояние от дома. С одной стороны, душ желательно разместить ближе к дому, чтобы прохладным вечером быстро переместиться в теплое помещение. Но с другой – отвод воды может не лучшим образом сказаться на фундаменте рядом стоящих зданий.
- подача воды. Обычно летний душ оборудован баком. Но вода в емкость должна как-то закачиваться. В частном доме вода подается с помощью шланга. На даче – чаще всего вручную.
- слив воды. Установив душ на возвышенности можно упростить отвод использованной воды.
- внешний вид. Продуманный дизайн летнего душа позволит внести определенный штрих в общий декор участка.
- освещенность. Учитывая тот факт, что воду в баке планируется нагревать от солнечных лучей, то лучше размещать душ в том месте, где солнце будет светить дольше;
- сквозняки. Также следует учесть выбирая место для душа. Иначе вместо удовольствия, пользователи будут иметь постоянную простуду.
Как сделать летний душ своими руками - инструкция
1 этап – материал и инструмент
Материал каркаса для душа
- каркас из дерева. Желательно использовать прочную, сухую древесину хвойных пород. Толщина бруска зависит от толщины поликарбоната и веса бака для воды. Оптимальным будет использование бруса не тоньше 50х50 мм. Используя в работе дерево, нужно позаботиться о продлении срока его службы. Для этого стоит покрыть древесину специальными растворами: антисептиком, грунтовкой, обработать защитой от древесного жучка и т.п.;
- каркас из металлического уголка или трубы. Чтобы изготовить вертикальные стойки подойдет труба диаметров в 40 мм. с толщиной стенки от 2 мм. Чтобы усилить конструкцию можно установить промежуточные соединения. Для них подойдет труба в 25мм. с толщиной стенки от 1,2 мм.
Также можно использовать уголок размером 40х60 с толщиной металла свыше 2 мм.
Учтите, что металл также нужно обязательно обработать растворами, защищающими от коррозии.
- каркас из алюминиевого профиля. Большинство покупных изделий изготовлено именно из алюминиевого профиля. Он не подвержен коррозии, но его стоимость выше, нежели цена дерева или металла.
- каркас из кирпича, камня или бетонных столбов. Кирпичный, бутовый или бетонный каркас достаточно редкое явление при строительстве душа из поликарбоната.
Совет: несмотря на заверения производителей, пластиковые трубы лучше не использовать для изготовления каркаса летнего душа. Вместе с высокой парусностью облицовочного материала (например, поликарбоната), такая конструкция не будет обладать достаточной устойчивостью.
Материал для отделки
О нем уже говорилось выше. Важно, чтобы материал был подготовлен для эксплуатации в условиях высокой влажности и влияния атмосферных факторов. Например, пленку приобретать парниковую, она служит два года минимум. Дерево нужно обработать антисептиком, грунтовкой, раствором, предотвращающим повреждение древесины жуками короедами. Поликарбонат должен иметь защитный слой, выдерживающий воздействие ультрафиолета. Профнастил – качественное полимерное покрытие, в противном случае, ржавчина появится уже после первого сезона.
Бак для душа (емкость)
На выбор бака влияет:
- число потребителей, на которых рассчитана душевая;
- материал изготовления. Бак может быть стальным, пластиковым или алюминиевым. Емкости, изготовленные из разных материалов, нагреваются с разной скоростью и соответственно, по-разному остывают;
- вес бака. От этого зависит материал каркаса;
- объем бака. На рынке встречаются резервуары с объемом от 50 до 220 литров;
- возможность подогрева воды в баке;
- наличие центрального или частного водоснабжения, иначе придется наполнять бочку вручную;
- возможность транспортировки. Можно купить бак большого объема, но его невозможно разобрать, а поэтому следует заранее учесть вопросы транспортировки, подъема и установки бака;
- цвет бака. Наиболее распространены баки черного или синего цвета. Такие цвета не отбивают солнечные лучи, благодаря чему вода в них прогревается быстрее;
- форма бака – круглая или плоская – зависит от того, каким образом устроен каркас под бак. Но пользователи советуют использовать плоский бак в виду того, что он прогревается быстрее и равномернее. При этом объем плоского бака не превышает 140 л, а цилиндрического не превышает 1000 л.
- кран, душевая лейка, шланг и фитинги (для подачи воды).
Следует помнить, что вода в летнем душе бежит самотеком, поэтому напора на ждите. Но, дачники обычно не переживают по этому поводу.
- труба для отвода воды. В случае необходимости ее установки, лучше отдать предпочтение пластиковой трубе.
- инструмент зависит от того, какой материал будет составлять основу каркаса и какой использоваться для отделки душа.
2 этап – схема летнего душа
Чертеж летнего душа вполне по силам сделать самостоятельно, но чтобы было от чего отталкиваться, приведем несколько вариантов для примера.
Разрабатывая схему душа, заранее определитесь с материалом отделки. Некоторые виды, например, профнастил или поликарбонат отличаются значительной парусностью, а, следовательно, нужно предусмотреть установку дополнительных перемычек для жесткости конструкции.
Учтите также объем бака, каркас должен быть в состоянии выдержать вес заполненной водой емкости.
Продумайте размеры и место установки двери, которая должна открываться наружу.
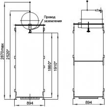
3 этап – проектирование (размеры летнего душа)
Конечно, уличный душ - это не капитальная постройка, но, тем не менее, стоит ответственно подойти к его проектированию.
Габариты душа зависят от предпочтений пользователей, но обычно составляют:
- ширина – 1000-1200 мм.
- длина – 800-1200 мм.
Если душ одновременно служит раздевалкой, то лучше, чтобы его размеры составляли как минимум 1000 на 1200. Если предусмотрена раздевалка, то сам душ можно уменьшить до 800х800, а раздевалку обустроить в соответствии с ее видением владельца. Если предполагается туалет, то соответственно, добавляется ширина и учитывается устройство выгребной ямы или подвод канализации.
- высота от 2000 мм. Этот параметр не является стандартным, поскольку зависит от:
- роста самого высокого пользователя с вытянутыми вверх руками;
- место установки бака для воды. Часто его устанавливают непосредственно под потолком душа;
- наличие/отсутствие поддона в душе.
- конфигурация. Летний душ имеет преимущественно квадратную форму. Однако, поликарбонат позволяет сделать душ круглой формы. А фантазия разработчика вообще может выйти за рамки стандартов и построить необычный и красивый летний душ из привычных (подручных) материалов.
4 этап – каркас для душа и отвод воды
Приведенные выше чертежи показывают, что каркас для душа – несложная конструкция.
Вне зависимости от материала каркаса, процесс его изготовления будет примерно одинаков. Но, тем не менее, существует несколько способов изготовить и установить каркас.
Совет: душ с раздевалкой (или с туалетом) требует установки дополнительных вертикальных стоек ввиду того, что имеет большие габариты по сравнению с душем без раздевалки.
Вариант 1. Примитивный каркас для душа
Сварить конструкцию и закрепить ее в земле с использованием металлических прутов. Согнутые пополам прутья длиной более метра, забиваются через нижний край каркаса в землю. Такой вариант не нашел распространения среди пользователей ввиду того, что не дает возможности организовать водоотвод. Использованная в душе вода будет подмывать пруты и скоро каркас может быть повержен даже небольшим ветром.
Вариант 2. Каркас для душа на столбчатом фундаменте
Сначала нужно установить вертикальные стойки. Для этого с помощью бура вынимается слой почвы глубиной 500-800 мм. На дно ям насыпать песчано-щебневую подушку, установить обработанные растворами стойки и залить их бетоном. При этом стойки выставляются строго по уровню.
Совет: деревянные стойки лучше просмолить или обернуть слоем рубероида. Так дерево будет меньше подвержено гниению.
После застывания бетона на вертикальные стойки крепят (сваркой или метизами для металлического каркаса, гвоздями или специальными скобами для деревянного) горизонтальные перемычки, которые будут удерживать бак, а также нижние перемычки. Их назначение удерживать нижний край листов поликарбоната или листового металла и принимать на себя часть веса всего каркаса.
Совет: при изготовлении каркаса нужно обеспечить дополнительные горизонтальные стойки для установки двери.
Жесткость конструкции придадут косые дополнительные перемычки.
Чтобы обеспечить отвод использованной воды необходимо установить поддон для летнего душа. Для этого нужно вынуть грунт с поверхности площадью равной площади душа плюс 100 мм. Глубина выемки будет составлять 300-350 мм. На дно засыпать слой щебня с песком. Оптимальная высота слоя 150-200 мм. Внутри каркаса делаем перевязку, которая служит основанием для пола. Далее можно установить поддон или сделать решетчатый пол.
Чтобы сделать решетчатый пол нужно на горизонтальные перемычки уложить лаги, а на них – доски шириной 50-100 мм. Величина зазора зависит от ширины доски и обычно составляет от 5 мм (для бруса в 30х30 мм), до 20 мм (для доски шириной от 10 мм).
Совет: зазор должен обеспечивать быстрый отток воды и исключать возможность травмирования ног.
Внимание: в прохладную погоду поток воздуха снизу (из-под пола) сделает принятие душа не очень комфортным.
Вариант 3. Каркас для душа на фундаменте
Для этих целей лучше и проще заливать фундамент в виде монолитной плиты. Чтобы понять, как сделать фундамент под душ нужно определиться с тем, куда будет уходить использованная вода. Следовательно, необходимо позаботится о сливной яме.
Устройство фундамента для летнего душа
Нужно вынуть грунт с поверхности площадью равной площади душа плюс 100 мм. Глубина выемки земли будет составлять 300-350 мм. Засыпать дно ямы слоем щебня с песком. Оптимальная высота песчано-гравийной подушки 150-200 мм. Хорошо утрамбовать и полить водой. Затем залить эту подушку раствором бетона, позаботившись предварительно об обустройстве стока воды. Для этого в бетонную плиту нужно вмуровать полимерную трубу, а сам фундамент залить под углом. Так, чтобы вода самотеком текла в трубу. А далее уходила либо в землю (при малой частоте использования душа несколькими пользователями) или в специальную яму (в том случае, если душем пользуется много людей). Вторым вариантом обеспечить слив воды будет заливка фундамента под углом к поверхности и устройство в месте стока воды дренажа.
Далее на застывший бетонный фундамент устанавливается каркас из металлических профилей (труб) или деревянных брусьев.
После выполнения всех работ все металлические и деревянные части каркаса еще раз обрабатываются грунтовкой или краской.
Совет: краска должна подходить для эксплуатации в условиях повышенной влажности.
Мнения пользователей. Что касается заливки фундамента, то здесь мнения пользователей разнятся. Некоторые считают, что душ из поликарбоната, как конструкция имеющая малый вес не нуждается в фундаменте, достаточно просто углубить вертикальные стойки каркаса и сделать отсыпку из гравия. А некоторые убеждены, что фундамент сделает душ более надежным. В любом случае, он не помешает, единственное, повлечет чуть большие затраты на строительство.
5 этап – пол для летнего душа
Устройство пола предусматривает сооружение деревянного настила или установку поддона.
Совет: в качестве разовой меры подходит автомобильный коврик, уложенный на бетонный пол.
6 этап – установка бака для воды
Бак устанавливается на предварительно подготовленное для него место в каркасе и крепится к нему.
Совет: ускорить нагревание воды в баке можно, если накрыть его пленкой или уложить сверху лист поликарбоната.
7 этап – электропроводка
Подвод электричества и разводка электропроводки, установка нагревательных элементов (бак с подогревом - тэном).
В завершение выполняется внутреннее и внешнее декорирование.
Заключение
Благодаря этой пошаговой инструкции, теперь вы знаете как построить летний душ для дачи своими руками. Наслаждайтесь прохладой воды в самый разгар знойного лета.
Метки: Летний душ
24 738
0
-
Строительство дома из арболита (арболитовых блоков) – технология возведения, от фундамента до крыши
Такая ситуация, мне начали строить дом из арболита, но наделали кучу ошибок по кладке (ниже фото). Сейчас хочу взыскать с этих криворуких строителей компенсацию. По самому материалу претензий нет, -
Утепление входной металлической двери – правильная теплоизоляция своими руками
Бюджетный способ утеплить китайскую дверь от дяди Вани. В отличие от обычной пустотелой двери, в китайской хотя бы бумага внутри. Конечно, эти соты из прессованного картона мало помогут в мороз, но -
Входные двери с терморазрывом – металлические термодвери для частного дома
Установил термодверь в декабре 2015 года. До этого стояла стальная дверь, утепленная внутри полотна и по периметру. Температура в коридоре была ниже, нежели в комнатах (коридор отапливаемый). После -
Монтаж водосточной системы своими руками – установка водостоков для крыши
Пытались помочь в рамках своей компетенции.Раз уж комплектующие Деке, то разумно будет согласовать эти вопросы с ними.Да, в скором будущем на сайте будет отдельный материал по расчетам водосточной -
Монтаж водосточной системы своими руками – установка водостоков для крыши
У Docke эти странные требования заложены в pdf инструкцию по монтажу водосточной системы. Формулу я вывел сам, это не сложно, задачка в пределах школьного курса геометрии. Дело в том, что я купил их -
Монтаж водосточной системы своими руками – установка водостоков для крыши
Не уверенны, что сможем дать однозначный ответ насчет градусов. Откуда вообще эта формула, на сайте Деке не нашли. Спросили у ребят, которые профильно занимаются монтажом водостоков. Сказали, что -
Монтаж водосточной системы своими руками – установка водостоков для крыши
Интересно, что те же Дёке, несмотря на свои рекомендации, дают фотографии своих монтажных работ по крутым скатам, которые явно им противоречат (фото). Там скаты смотрят в жёлоб, а не поверх него. Моя -
Монтаж водосточной системы своими руками – установка водостоков для крыши
Спасибо за развёрнутый ответ, но он не во всём разъясняет проблему, поэтому уточню вопрос. На прилагаемых рисунках, взятых из рунета, показано то самое поперечное сечение, о котором я говорю, с -
Установка забора из сетки рабицы своими руками – пошаговая инструкция
В описанном вами случае, нужно использовать квадратный профиль с сечением не менее 100х100 мм. Ввиду того, что планируется посадка вьющихся растений желательно устанавливать одинаковый профиль по -
Как сделать калитку из сетки рабицы для дачи своими руками
Выбирается индивидуально, но согласно логике, распашная калитка и ворота из рабицы (как и любые другие) должны открываться наружу. Объясняется несколькими причинами. Первая – при экстренной ситуации,

























