Как сделать деревянный душ своими руками – устройство дачной душевой из дерева
Деревянный летний душ для дачи – это небольшая постройка на участке, но значимость и польза которой неоспорима. Без душа трудно обойтись в теплый период года. Кроме того, дачный душ можно отнести к способу сэкономить семейный бюджет, так как вода в баке или бочке подогревается солнцем.
Для строительства уличной душевой подойдет любой материал, но наиболее органично и недорого будет использовать древесину.
Конечно, можно купить готовый деревянный душ, но если бюджет ограничен, то правильно будет изготовить его из подручных материалов. Обрезная доска и брус, как правило, имеются на участке в виде остатков после строительства дома или хозпостроек, если не в полном объеме, то частично. Рассмотрим пошагово все этапы строительства простой конструкции уличной душевой.
Как сделать деревянный душ своими руками
Сначала нужно правильно выбрать место, так чтобы оно освещалось солнцем как можно дольше, и обеспечить возвышенность. Если рельеф местности не позволяет установить душ на высоте, нужно сделать небольшую насыпь для организации стока воды.
Второй момент – приготовить материал. Чтобы построить уличный душ можно использовать самый доступный и сравнительно дешевый в хозяйстве материал – дерево (доски, брус), желательно хвойных пород.
Преимущества дерева, как материала для изготовления душа:
- экологический чистое;
- доступное;
- эстетичное;
- легко поддается обработке.
Существенный минус древесины - подверженность влаге и жучкам (устраняется посредством дополнительной обработки и периодического ухода).
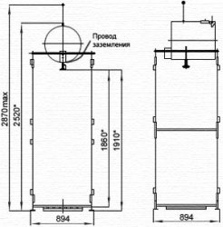
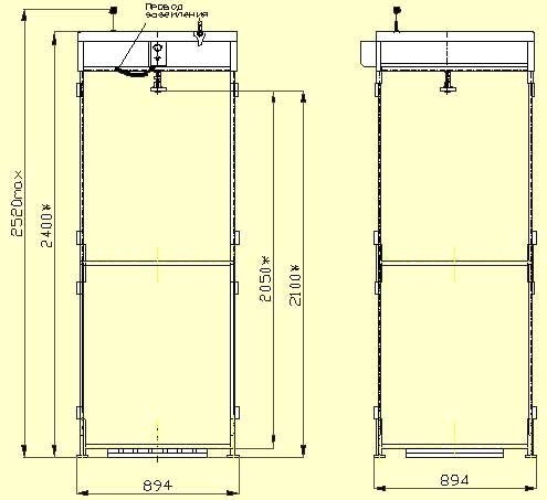
Схемы и чертежи деревянного душа для дачи
Летний душ из дерева настолько прост, что чертежи для его изготовления практически не нужны. Но, для того, чтобы понимать конструкцию приведем несколько примеров:
Как видно из рисунков, строительство деревянного душа не отличается особой сложностью. Но прежде чем приступить, нужно продумать следующее:
- освещение. Пользуются летним душем не только днем, но и вечером. Поэтому нужно предусмотреть освещение – естественное или электрическое. Это могут быть окошки в стене, открытые проемы или электрические лампы. Чаще всего дачный деревянный душ просто оставляют без крыши;
- вентиляция. Полностью закрытый душ из дерева нуждается в проветривании. Для этого нужно предусмотреть вентиляционные люки;
- подогрев. Чтобы иметь возможность использовать душ ранней весной или поздней осенью, когда интенсивности солнца и продолжительности светового дня недостаточно для естественного нагрева воды, многие обеспечивают дополнительный подогрев воды. Среди популярных способов подогрева можно выделить: установка печи или колонки, установка бойлера (электрического водонагревателя), пристройка душевой к дому и подключение к центральному водоснабжению, использование кипятильника.
Обустраивая деревянный душ с подогревом, позаботьтесь о безопасности, использовании провода нужного сечения, изоляции его от влаги и т.п.
- раздевалка. Чтобы одежда оставалась сухой, ее можно оставить за пределами душа, а можно сделать деревянный душ для дачи с раздевалкой. Причем пользователи советуют не делать два отдельных помещения, а просто разделять душ шторкой. Это позволит не тратить время, площадь и материал на строительство и оставит больше места для купания;
- банные принадлежности. Для хранения достаточно сделать простые деревянные полки. Но место их размещения нужно продумать. Они должны быть близко, чтобы дотянуться рукой, и не мешать принимать водные процедуры.

Строительство дачного деревянного душа
Изготовление летнего душа из дерева осуществляется в несколько этапов:
Устройство слива воды из душа
Деревянная душевая боится влаги, поэтому нужно позаботиться об быстром отводе воды из душа на даче. Особенно актуально для закрытых помещений.
Простейший слив для душа - это отвод воды непосредственно в почву под ногами. Но скоро возле такого душа будет образовано небольшое болотце, привлекающее насекомых и создающее неприятный запах, и неухоженный вид.
Правильно организованная водосточная система душа или слив состоит из пола, водостока и септика.
Септик или сливная яма должна располагаться минимум в 3-4 метрах от душа и по объему превышать объем бака в 2 раза.
Водосток для летнего душа, простой вариант - это канава, дно которой выслано ПВХ-пленкой. Но лучше использовать пластиковую трубу, через которую отработанная вода уходит в септик.
Устройство пола для деревянного душа
Два распространенных варианта:
- деревянный пол в душе. Для эксплуатации такого пола, нужно сделать под душем дренажную систему. Для этого нужно выкопать углубление равное площади душа на глубину до 300 мм. Яма засыпается щебнем и песком. Сверху устанавливаются деревянный поддон или решетка;
- бетонный пол. В этом случае выкапывается более глубокое углубление – до 400мм. На дно укладывается подушка из щебня и мелкого гравия, а сверху заливается бетоном. Чтобы вода могла свободно уходить из душа нужно заливать бетон под углом, а для отвода использовать трубу.
Строительство каркаса деревянного душа
Поскольку душ будет выполнен из дерева, то и для каркаса будет использован тот же материал.
Учитывая, что бак для воды, расположенный наверху душа будет достаточно тяжелым (в наполненном состоянии), а сама конструкция душа подвержена ветровой нагрузке, лучше выбрать для стоек брус сечением 100х100 мм.
Для установки вертикальный стоек нужно пробурить (или выкопать) ямы глубиной до 1 м. Глубина зависит от места размещения душа. Если в огражденном месте можно 0,5м. На дно ямы укладывается песчано-щебневая подушка, и устанавливаются стойки. Чтобы дерево дольше сохранялось, его нужно предварительно обработать смолой, машинным маслом, олифой или завернуть в рубероид. Далее стойки бетонируются.
Чтобы защитить стойки можно установить металлические заготовки с размером равным параметрам бруса или цилиндра, забетонировать их. Затем забить в них дерево.
После высыхания (застывания) бетона можно приступать к дальнейшему строительству.
Все стойки, выставленные строго по уровню, соединяются верхней и нижней обвязкой.
Совет. Чтобы сделать верхнюю обвязку проще, можно собрать раму на земле, установить на опоры сверху и закрепить болтами-глухарями.
Материал подготовлен для сайта www.stolfactory-era.ru
Учтите, планируя решетчатый деревянный пол, нижняя обвязка будет выполнять функцию опоры под лаги, поэтому ее нужно хорошо закрепить. При бетонном поле нижняя обвязка служит для крепления древесины отделки.
На верхнюю обвязку накрывается крыша, и устанавливается бак.
Строительство деревянного душа свими руками - видео
Рекомендации по выбору и установке бака для душа
- бак нужно выбирать темного цвета, он будет притягивать солнечные лучи;
- толщина стенок влияет на скорость прогревания;
- бак должен быть устойчив к морозам. В противном случае его придется убирать на зиму;
- для безопасности располагайте бак сзади или сбоку от кабинки;
- планируя душ с подогревом, отдайте предпочтение металлическому баку;
- чтобы освежиться одному человеку нужно минимум 20 л. Учтите это выбирая объем бака;
Установка бака не создает трудностей, главное надежно закрепить его на крыше. До момента установки нужно сделать в днище бака (бочки) отверстие для лейки с краном (если оно не предусмотрено производителем).
Обшивка стен и установка двери
Стены летнего душа зашиваются подготовленными досками. Последней навешивается дверь. Следуя логике строительства, она должна быть деревянной. Но от влаги дерево часто «ведет», поэтому многие советуют использовать пленочную занавеску в качестве двери. Конечно, если у вас капитальный летний душ, то лучше позаботится об установке качественной деревянной двери.
Дизайн деревянного душа
Это тот участок работы, к выполнению которого можно привлечь детей. Покрытый лаком, окрашенный в один цвет или во все цвета радуги он внесет изюминку в общий внешний вид участка.
Дополнительно летний душ можно украсить горшками с цветами или высадить возле него вьющиеся растения.
Фото деревянного душа для идей и вдохновения
Заключение
Теперь, когда вы знаете, как построить деревянный душ своими руками, не мешкайте, приступайте к строительству и получите возможность побаловать себя несколькими минутами удовольствия после тяжелого дня!
Метки: Летний душ Дерево
26 850
0
-
Строительство дома из арболита (арболитовых блоков) – технология возведения, от фундамента до крыши
Такая ситуация, мне начали строить дом из арболита, но наделали кучу ошибок по кладке (ниже фото). Сейчас хочу взыскать с этих криворуких строителей компенсацию. По самому материалу претензий нет, -
Утепление входной металлической двери – правильная теплоизоляция своими руками
Бюджетный способ утеплить китайскую дверь от дяди Вани. В отличие от обычной пустотелой двери, в китайской хотя бы бумага внутри. Конечно, эти соты из прессованного картона мало помогут в мороз, но -
Входные двери с терморазрывом – металлические термодвери для частного дома
Установил термодверь в декабре 2015 года. До этого стояла стальная дверь, утепленная внутри полотна и по периметру. Температура в коридоре была ниже, нежели в комнатах (коридор отапливаемый). После -
Монтаж водосточной системы своими руками – установка водостоков для крыши
Пытались помочь в рамках своей компетенции.Раз уж комплектующие Деке, то разумно будет согласовать эти вопросы с ними.Да, в скором будущем на сайте будет отдельный материал по расчетам водосточной -
Монтаж водосточной системы своими руками – установка водостоков для крыши
У Docke эти странные требования заложены в pdf инструкцию по монтажу водосточной системы. Формулу я вывел сам, это не сложно, задачка в пределах школьного курса геометрии. Дело в том, что я купил их -
Монтаж водосточной системы своими руками – установка водостоков для крыши
Не уверенны, что сможем дать однозначный ответ насчет градусов. Откуда вообще эта формула, на сайте Деке не нашли. Спросили у ребят, которые профильно занимаются монтажом водостоков. Сказали, что -
Монтаж водосточной системы своими руками – установка водостоков для крыши
Интересно, что те же Дёке, несмотря на свои рекомендации, дают фотографии своих монтажных работ по крутым скатам, которые явно им противоречат (фото). Там скаты смотрят в жёлоб, а не поверх него. Моя -
Монтаж водосточной системы своими руками – установка водостоков для крыши
Спасибо за развёрнутый ответ, но он не во всём разъясняет проблему, поэтому уточню вопрос. На прилагаемых рисунках, взятых из рунета, показано то самое поперечное сечение, о котором я говорю, с -
Установка забора из сетки рабицы своими руками – пошаговая инструкция
В описанном вами случае, нужно использовать квадратный профиль с сечением не менее 100х100 мм. Ввиду того, что планируется посадка вьющихся растений желательно устанавливать одинаковый профиль по -
Как сделать калитку из сетки рабицы для дачи своими руками
Выбирается индивидуально, но согласно логике, распашная калитка и ворота из рабицы (как и любые другие) должны открываться наружу. Объясняется несколькими причинами. Первая – при экстренной ситуации,































